Mieszkanie ul. Targowa 17
Targowa 17, Poddębice, łódzkie
- 423 300 zł
- 49,80 m²
- 8 500 zł/m²
Biuro sprzedaży
Skontaktuj się
Mieszkanie ul. Targowa 17
Targowa 17, Poddębice, łódzkie
zaktualizowane:
23 lutego 2026
Mieszkanie ul. Targowa 17
Inwestycja: Osiedle Kwietne Łąki
Zaktualizowane: 23 lutego 2026
423 300 zł 49,80 m² 8 500 zł/m²
IV kwartał 2026
3/2
3
naziemne
deweloperski
Zobacz na mapie
Termin realizacji:
IV kwartał 2026Piętro:
3/2Liczba pokoi:
3Miejsce postojowe:
naziemneStan mieszkania:
deweloperskiSzczegóły ogłoszenia
- Typ oferty: mieszkanie na sprzedaż
- Cena: 423 300 zł (8 500 zł/m²)
- Termin realizacji: IV kwartał 2026
- Status oferty: dostępne
- Rynek: pierwotny (oferta dewelopera)
- Charakterystyka mieszkania: 49,80 m², 3 pokoje, 1 łazienka; stan: deweloperski
- Budynek: apartamentowiec
- winda
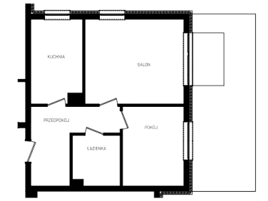
- Rozkład mieszkania: piętro 3/2, jednopoziomowe
- Powierzchnia dodatkowa: balkon (3,7 m²)
- Kuchnia: aneks kuchenny
- Miejsce/a postojowe: naziemne, przynależne do mieszkania - bez obowiązku zakupu
w garażu indywidualnym, przynależne do mieszkania - bez obowiązku zakupu; garaż w bryle budynku - Bezpieczeństwo: teren ogrodzony
- Źródło: oferta dewelopera: Budica, zaktualizowane: 23.02.2026
- sygnatura ogłoszenia: 3/35
Lokalizacja
- Inwestycja: Osiedle Kwietne Łąki
- Adres: Targowa 17, Poddębice, łódzkie
- Otoczenie: działki zabudowane, teren wiejski, obrzeża miasta, luźna zabudowa jednorodzinna, obiekty handlowo-usługowe
- Na terenie inwestycji: plac zabaw, rowerownia, stacja ładowania samochodów elektrycznych, panele fotowoltaiczne, łąki kwietne
- W pobliżu żłobek, przedszkole, szkoła średnia, restauracja, kawiarnia, basen, przychodnia, szpital, przystanek autobusowy, dworzec autobusowy, stacja benzynowa, parking, poczta, park, plac zabaw, termy, bulwar, łąka, rzeka
Opis nieruchomości
Mieszkanie na 3 piętrze z balkonem i oknami od strony wschodniej. Wygodna sypialnia, łazienka, kuchnia w dobrym układzie (z możliwością otwarcia na salon) (...)
| Mieszkanie1/24 | 56,94 m² | 9 900 zł/m² | 2/2 | 3 | 563 706 zł |
| Mieszkanie | ||||
|
||||
| 1/24 |
| Mieszkanie1/25 | 53,22 m² | 10 000 zł/m² | 2/2 | 2 | 532 200 zł |
| Mieszkanie | ||||
|
||||
| 1/25 |
| Mieszkanie1/8 | 53,47 m² | 8 429,10 zł/m² | parter/3 | 2 | 450 704 zł |
| Mieszkanie | ||||
|
||||
| 1/8 |
| Mieszkanie1/34 | 53,29 m² | 8 600 zł/m² | 3/3 | 2 | 458 294 zł |
| Mieszkanie | ||||
|
||||
| 1/34 |
| Mieszkanie3/25 | 53,66 m² | 8 400 zł/m² | 2/2 | 2 | 450 744 zł |
| Mieszkanie | ||||
|
||||
| 3/25 |
| Mieszkanie3/7 | 57,43 m² | 8 587,31 zł/m² | parter/2 | 3 | 493 169 zł |
| Mieszkanie | ||||
|
||||
| 3/7 |
| Mieszkanie3/8 | 53,66 m² | 8 628,29 zł/m² | parter/2 | 2 | 462 994 zł |
| Mieszkanie | ||||
|
||||
| 3/8 |
| Mieszkanie3/2 | 53,66 m² | 8 628,29 zł/m² | parter/2 | 2 | 462 994 zł |
| Mieszkanie | ||||
|
||||
| 3/2 |
| Mieszkanie3/3 | 57,46 m² | 8 582,82 zł/m² | parter/2 | 3 | 493 169 zł |
| Mieszkanie | ||||
|
||||
| 3/3 |
| Mieszkanie3/16 | 53,66 m² | 8 400 zł/m² | 1/2 | 2 | 450 744 zł |
| Mieszkanie | ||||
|
||||
| 3/16 |
| Mieszkanie3/18 | 53,34 m² | 8 400 zł/m² | 2/2 | 3 | 448 056 zł |
| Mieszkanie | ||||
|
||||
| 3/18 |
| Mieszkanie3/28 | 53,66 m² | 8 400 zł/m² | 3/2 | 2 | 450 744 zł |
| Mieszkanie | ||||
|
||||
| 3/28 |
| Mieszkanie3/24 | 57,43 m² | 8 300 zł/m² | 2/2 | 3 | 476 669 zł |
| Mieszkanie | ||||
|
||||
| 3/24 |
| Mieszkanie3/34 | 53,66 m² | 8 400 zł/m² | 3/2 | 2 | 450 744 zł |
| Mieszkanie | ||||
|
||||
| 3/34 |
| Mieszkanie3/33 | 57,43 m² | 8 300 zł/m² | 3/2 | 3 | 476 669 zł |
| Mieszkanie | ||||
|
||||
| 3/33 |
Biuro sprzedaży
799 364...
799 364 866
















